- Vérification de conformité
- Projets de rénovation/réhabilitation
- Changement d’exploitation
- Audits périodiques ou ponctuels
- Suite à l’apparition de désordres type fissures
- Bâtiments
- Audit structures existantes type balcons/planchers
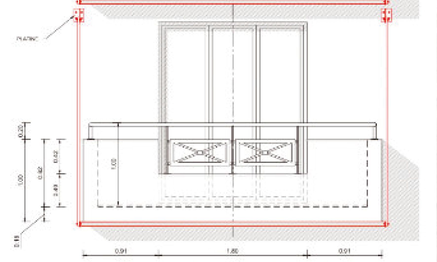
- Création d’ouvertures pour des maisons/
appartements individuels
- Études de surélévation de bâtiments existants
- Maitre d’ouvrages
- Architectes
- Constructeurs piscine
- Entreprises de gros oeuvre
- Particuliers
100 %
DE CLIENTS SATISFAITS
75 %
DE CLIENTS RÉCURRENTS
231
AVANT-PROJETS
86
CHANTIERS EXÉCUTÉS
ILS NOUS FONT CONFIANCE...
ALILA PROMOTEUR . ATLAND . BOUYGUES BATIMENT IDF . BOUYGUES BATIMENT SUD EST . BOUYGUES . CAMIF HABITAT . DROUET . ICF HABITAT . IMMOFLERS . COGEDIM . CREDIT AGRICOLE . DEMATHIEU ET BARD . EDOUARD DENIS . EIFFAGE . ERILIA . GCC . GROUPE PIERREVAL . IMMOBEL . IMMOBILIÈRE 3 F . IN'LI . KAUFMAN & BROAD . LEGENDRE . LGX . NEXITY . PARIS HABITAT . POLAT CONSTRUCTION . PC TECH . SNCF IMMOBILIER . SPIE BATIGNOLES . VINCI IMMOBILIER .
Un Renseignement ?
Intéressés par notre expertise d'auscultation des structures béton ? N’hésitez pas à nous contacter.






